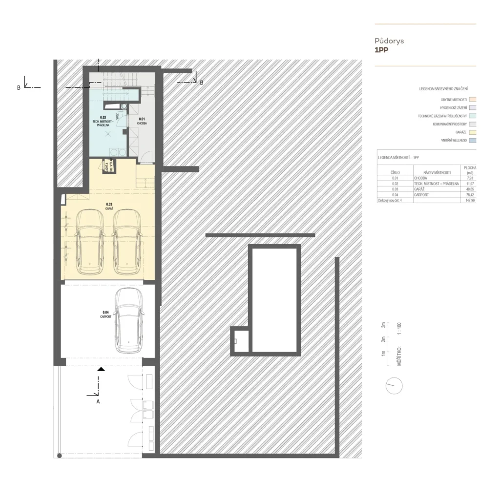
VILA 06

Samostatně stojící vila na okraji souboru vil. Rozsáhlý wellness se saunou s přímým vstupem na zahradní terasu. Rozšíření krytého parkování až pro 4 automobily.

Plocha pozemku
830 m2

Hrubá podlahová plocha
517 m2

Plocha balkónů a teras
105 m2

Situace

Půdorysy, řezy, pohledy

Galerie