VILA 07

Samostatně stojící a nejvýše položená vila s překrásným výhledem. Denní část domu navazuje na zahradu, klidová spací část domu se nachází v nejvyšším podlaží.

Plocha pozemku
756 m2

Hrubá podlahová plocha
420 m2

Plocha balkónů a teras
93 m2

Situace

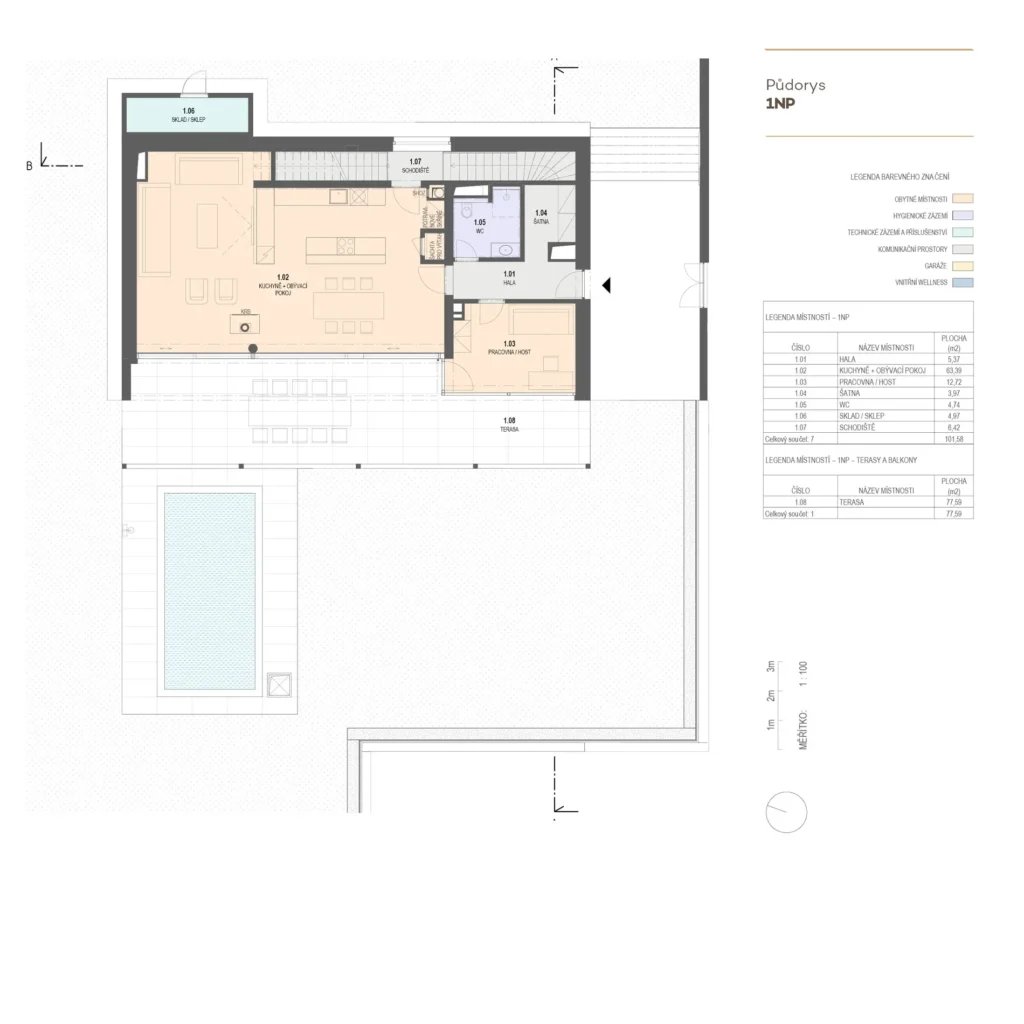
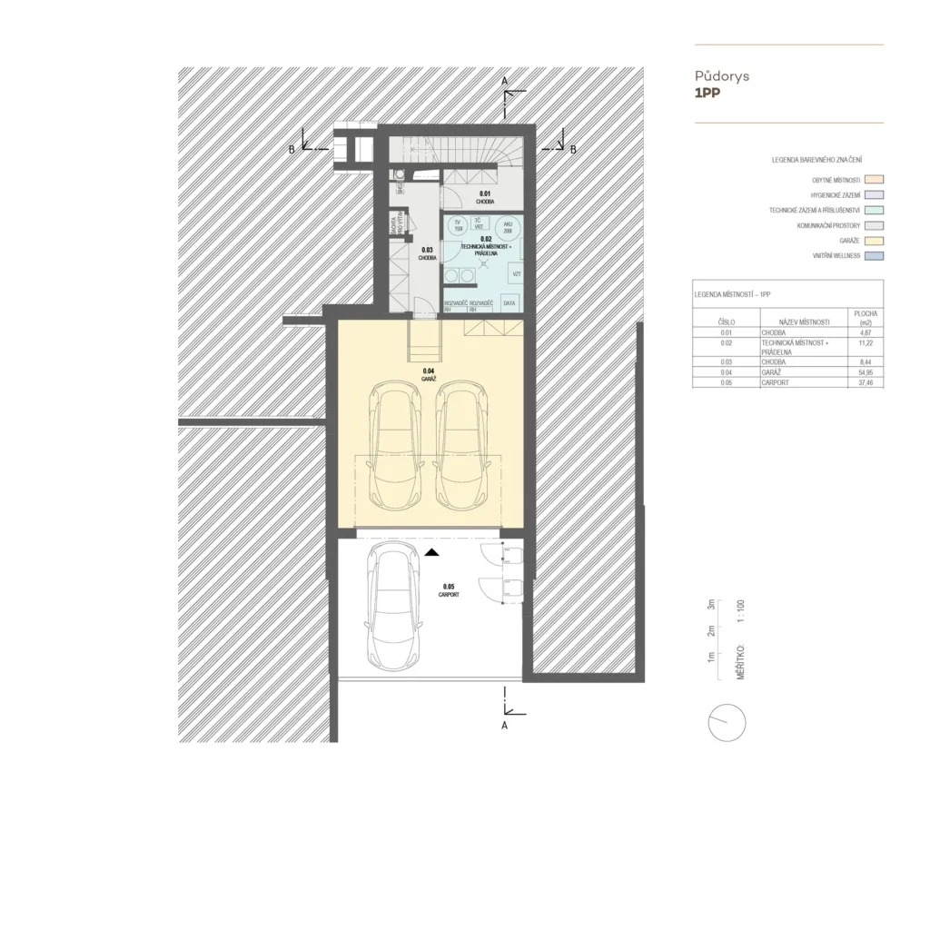
Půdorysy, řezy, pohledy

Galerie